Productive Conservation rethinks floodplain agriculture and establishes a management model for agricultural lands in the Connecticut River Valley.
Productive Conservation is a land management approach that restores ecological function while supporting viable farm production. Along the Mill River at the Grow Food Northampton (GFN) farm, RDG helped shape a site-specific model that strengthens riparian habitat, stabilizes soils, and produces marketable perennial crops.
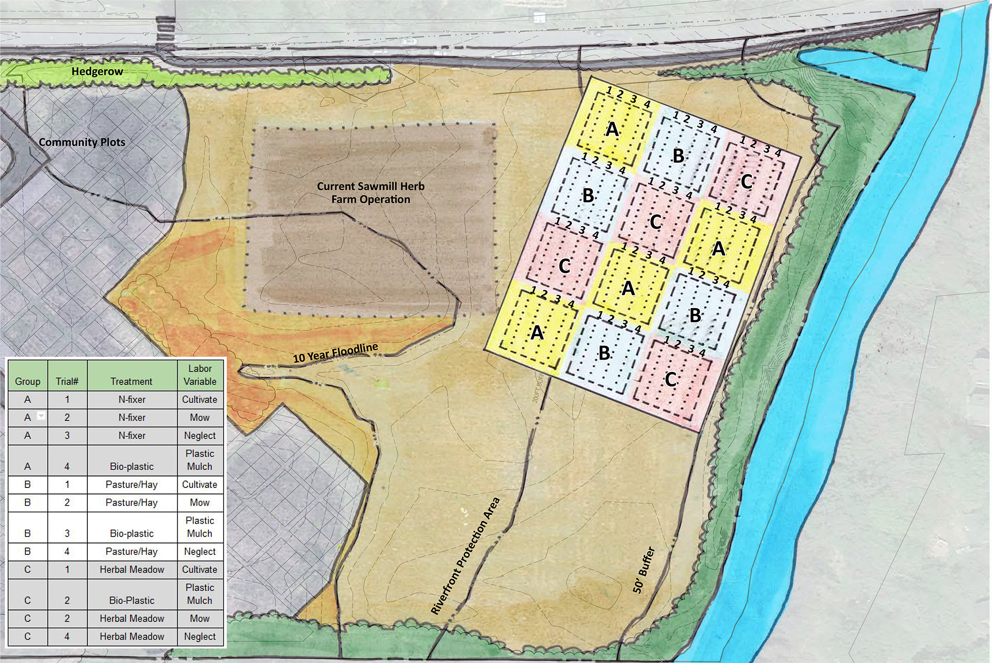
RDG originally designed GFN’s 300-plot community garden in 2011, including a concept for restoring several acres of fragile riverfront between the gardens and the Mill River. In 2017, we returned to implement that vision across seven acres vulnerable to flooding, erosion, and invasive species pressure. Working within the Riverfront Protection Area and 10-year floodplain, we developed a layered design that mimics floodplain forest structure while supporting agricultural productivity.
The plan organizes the site into four functional zones:
- Forested Riverside Zone focused on riparian restoration and invasive management, with select shade-tolerant crops.
- Main Crop Zone managed for high-yield perennial production and soil stability within the floodplain.
- Perennial Buffer Zone protecting community gardens while creating habitat and a functional hedgerow.
- Flexible Tillage Zone at higher elevation, allowing adaptive crop management.
- Elderberry emerged as a keystone crop across multiple zones due to its flood tolerance, thicket-forming structure, and value-added potential.
This project serves as a pilot model for scalable productive conservation throughout the Mill River watershed and the broader Connecticut River Valley, demonstrating how floodplain restoration and farm viability can work together rather than in opposition.
Client
Grow Food Northampton
Florence, MA
Key Features
- Scalable model for floodplain agriculture
- Habitat restoration
- Invasive plant management
Services
- Facilitation of multi-stakeholder visioning
- Assessment of agro-ecological potential
- Grant writing
- Productive Conservation concept development












